上海内螺纹气动程控切断阀
JDQ11Y 内螺纹气动程控切断阀
详细介绍
一、JDQ11Y 内螺纹气动程控切断阀产品概述
JDQ11Y 内螺纹气动程控切断阀是一种能在各种管路上做远距离、快速开启和切断的阀门。
二、JDQ11Y 内螺纹气动程控切断阀主要性能规范
规格(DN) | 15-200 | MPa | |
公称压力 | 1.6 | ||
密封试验压力 | 1.1(倍) | ||
阀体强度试验压力 | 1.5(倍) | ||
工作温度(℃) | -40∽100 / -40∽425 | ||
适用介质 | 水、蒸汽、油品、气体 | ||
结构长度 | GB12221-89/ GB12233 | ||
法兰标准 | JB/T79-94 | ||
三、JDQ11Y 内螺纹气动程控切断阀主要作用原理及结构说明
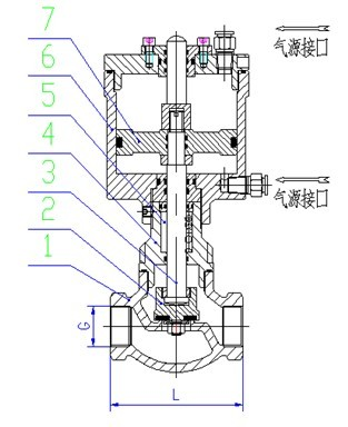
当控制器按事先编好的程序对某个气源换向阀输出一个信号,该换向阀动作,使带压仪表气源通过换向阀的切换进入气动执行机构的气缸上腔或下腔,推动活塞运动使阀们开启或关闭。阀门的操作连接方式(如图所示)。

四、JDQ11Y 内螺纹气动程控切断阀主要外型尺寸与连接尺寸(参照构图)
DN | 15 | 20 | 25 | 32 | 40 | 50 | 65 |
L | 90 | 100 | 120 | 140 | 170 | 200 | 260 |
G | 1/2 | 3/4 | 1 | 11/4 | 11/2 | 2 | 21/2 |
五、JDQ11Y 内螺纹气动程控切断阀主要零部件材料
1.阀体 | WCB |
2.阀瓣 | WCB |
3.阀杆 | 305 |
4.上盖 | WCB |
5.填料 | F4 |
6.气缸 | WCB/QT450 |
六、JDQ11Y 内螺纹气动程控切断阀主要结构图

客户订货须知
客户在选购产品时请尽量告知:①产品型号与名称;②公称通径DN(mm);③公称压力;④流量特性要求;⑤阀体材质及阀内件;⑥介质种类和温度范围;⑦阀前后压力(压差);⑧密封形式;⑨配套附件,以便我们正确的为你选型。如果客户使用的产品有附加要求或者使用环境复杂,您可以提供您的设计图纸和相关参数,由我公司的技术工程师为您把关。



