脉冲式安全阀
GA49H脉冲式安全阀
详细介绍
一、GA49H脉冲式安全阀主要产品概述
GA49H脉冲式安全阀主要用于电站锅炉、压力容器、减温减压装置等设备,防止压力超过允许最高压力值,保证设备安全运行。
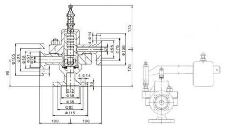
1、通过杠杆和重锤来平衡阀瓣的压力,使阀门保证密封,移动重锤的位置和改变重锤的重量来达到要求的起跳压力。
2、密封面用铁基铬镍不锈钢堆焊而成,阀瓣经热处理,提高了耐磨性和抗冲蚀性。
3、GA49H脉冲式安全阀上部带有开启和关闭的电磁铁,机械和电器动作互不干扰。
二、GA49H脉冲式安全阀主要安装说明
1、GA49H脉冲式安全阀应与A49H-4型主安全阀配套使用。
2、脉冲式安全阀安装时应严格垂直,杠杆应保持水平,与导向叉两侧面间隙必须均匀。
3、脉冲式安全阀安装之前,应将管路冲洗干净。
4、脉冲式安全阀引出管与主安全阀的入口管之间应保持一定较长的距离,电接点压力表和主安全阀入口管之间的距离,不得小于5倍主安全阀入口管径,以免主安全阀动作时,因排汽影响电接点压力表和脉冲安全阀工作的正确性。
三、GA49H脉冲式安全阀主要外形及连接尺寸
型号型号 | 公称通径 | 连接尺寸 | |||||||||
L | L1 | H | D | D1 | D2 | b | z-d | DN" | D" | ||
GA49H-PW466.7V | 20 | 280 | 170 | 225 | 130 | 90 | 35 | 28 | 4-23 | 20 | 28 |
GA49H-PW5410V | 20 | 280 | 170 | 225 | 130 | 90 | 35 | 28 | 4-23 | 20 | 28 |
GA49H-PW5410.5V | 20 | 280 | 170 | 225 | 130 | 90 | 35 | 28 | 4-23 | 20 | 28 |
四、GA49H脉冲式安全阀主要结构图

客户订货须知
客户在选购产品时请尽量告知:①产品型号与名称;②公称通径DN(mm);③公称压力;④流量特性要求;⑤阀体材质及阀内件;⑥介质种类和温度范围;⑦阀前后压力(压差);⑧密封形式;⑨配套附件,以便我们正确的为你选型。如果客户使用的产品有附加要求或者使用环境复杂,您可以提供您的设计图纸和相关参数,由我公司的技术工程师为您把关。



