单杠杆式安全阀
详细介绍
GA41H/51H/44H型单杠杆式安全阀
介绍
一、GA41H/51H/44H型单杠杆式安全阀产品概述
GA41H/51H/44H型单杠杆式安全阀适用于工作温度≤450℃的空气、蒸汽等介质的设备和管路上,作为超压保护装置。当设备和管路内压力超过允许值时,阀门自动关闭,保证设备和管路的安全运行。该阀出口有套筒式、法兰式二种。
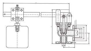
二、GA41H/51H/44H型单杠杆式安全阀主要外形尺寸及连接尺寸
公称通径 | 尺寸(mm) | 重量 (kg) | ||||
do | L | L1 | DN | H | ||
40 | 32 | 120 | 110 | 290 | 630 | 25 |
50 | 40 | 135 | 310 | 310 | 630 | 30 |
80 | 65 | 160 | 345 | 345 | 630 | 55 |
三、GA41H/51H/44H型单杠杆式安全阀主要结构图

客户订货须知
客户在选购产品时请尽量告知:①产品型号与名称;②公称通径DN(mm);③公称压力;④流量特性要求;⑤阀体材质及阀内件;⑥介质种类和温度范围;⑦阀前后压力(压差);⑧密封形式;⑨配套附件,以便我们正确的为你选型。如果客户使用的产品有附加要求或者使用环境复杂,您可以提供您的设计图纸和相关参数,由我公司的技术工程师为您把关。



